Ref. VA7173
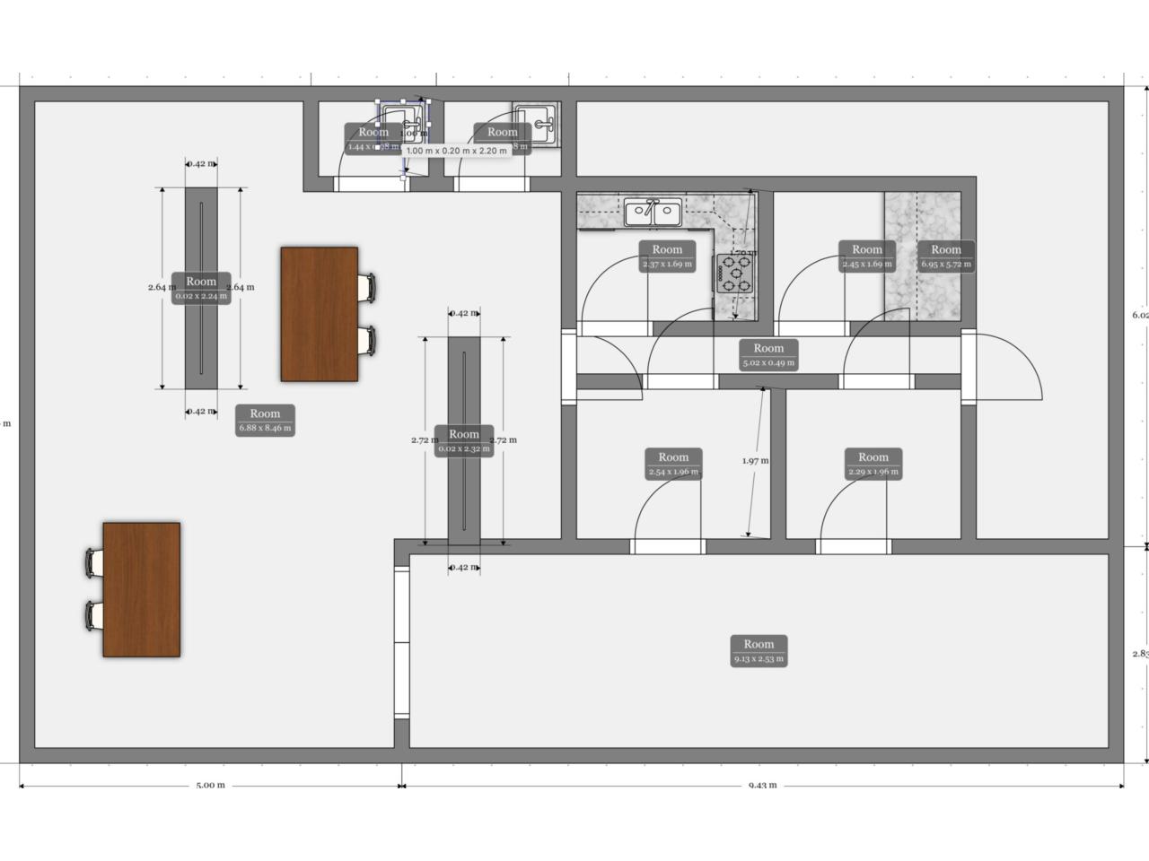
Te presentamos una propiedad muy especial en la urbanización El Lledoner (Vallirana): una casa independiente que combina vivienda y negocio en un mismo inmueble, perfecta para vivir, emprender o invertir con total comodidad. Con 390 m² construidos sobre una parcela de 490 m², esta casa se distribuye en dos plantas muy diferenciadas: PLANTA INFERIOR – LOCAL COMERCIAL TOTALMENTE MONTADO Una oportunidad fantástica para quien quiera reabrir un negocio o explotarlo desde el primer día. La planta baja dispone de: • Amplio salón equipado con horno para pizzas, brasas, barra de servicio y espacio para atención al público. • Dos baños para clientes. • Zona específica para comida preparada, con área de trabajo y almacenamiento. • Terraza cubierta, ideal como zona exterior del local. • Acceso directo al jardín, donde encontrarás una gran barbacoa lista para uso. Este espacio, además, ofrece la opción de reconvertirse en otra vivienda si se desea, gracias a su amplitud y distribución. ________________________________________ PLANTA SUPERIOR – VIVIENDA LISTA PARA ENTRAR A VIVIR La planta residencial ofrece un ambiente luminoso, cómodo y totalmente independiente: • Tres habitaciones, dos de ellas dobles con salida directa a una terraza exterior. • Baño completo. • Salón comedor muy luminoso, con acceso a otra terraza. • Cocina independiente, amplia y reformada, con mucha luz natural. Además, la propiedad cuenta con armarios empotrados, trastero, garaje y calefacción por gasoil. ________________________________________ En resumen, una casa con un enorme potencial: perfecta para quien busca unir vivienda y negocio, iniciar un proyecto rentable o disfrutar de mucho espacio y versatilidad en una de las mejores zonas de Vallirana.
Te presentamos una propiedad muy especial en la urbanización El Lledoner (Vallirana): una casa independiente que combina vivienda y negocio en un mismo inmueble, perfecta para vivir, emprender o invertir con total comod...
Te presentamos una propiedad muy especial en la urbanización El Lledoner (Vallirana): una casa independiente que combina vivienda y negocio en un mismo inmueble, perfecta para vivir, emprender o invertir con total comodidad. Con 390 m² construidos sobre una parcela de 490 m², esta casa se distribuye en dos plantas muy diferenciadas: PLANTA INFERIOR – LOCAL COMERCIAL TOTALMENTE MONTADO Una oportunidad fantástica para quien quiera reabrir un negocio o explotarlo desde el primer día. La planta baja dispone de: • Amplio salón equipado con horno para pizzas, brasas, barra de servicio y espacio para atención al público. • Dos baños para clientes. • Zona específica para comida preparada, con área de trabajo y almacenamiento. • Terraza cubierta, ideal como zona exterior del local. • Acceso directo al jardín, donde encontrarás una gran barbacoa lista para uso. Este espacio, además, ofrece la opción de reconvertirse en otra vivienda si se desea, gracias a su amplitud y distribución. ________________________________________ PLANTA SUPERIOR – VIVIENDA LISTA PARA ENTRAR A VIVIR La planta residencial ofrece un ambiente luminoso, cómodo y totalmente independiente: • Tres habitaciones, dos de ellas dobles con salida directa a una terraza exterior. • Baño completo. • Salón comedor muy luminoso, con acceso a otra terraza. • Cocina independiente, amplia y reformada, con mucha luz natural. Además, la propiedad cuenta con armarios empotrados, trastero, garaje y calefacción por gasoil. ________________________________________ En resumen, una casa con un enorme potencial: perfecta para quien busca unir vivienda y negocio, iniciar un proyecto rentable o disfrutar de mucho espacio y versatilidad en una de las mejores zonas de Vallirana.
Leer más
|
Parking |
|
|
Orientación |
Suroeste
|
|
Jardín |
|
|
Calefacción |
|
|
Terraza |
|
|
Superficie solar |
494 m2
|
|
Superficie útil |
200 m2
|
Cert. energética
Disponible
999 Kg CO2/m2 año